8.2 施工要点

8.2 施工要点

8.2.1 墙体钢筋的绑扎与安装应符合下列规定:
    1 墙体钢筋绑扎前,应根据结构特点、钢筋布置形式等因素制定钢筋绑扎工艺;绑扎过程中不得对钢构件污染、碰撞和损坏;
    2 墙体纵向受力钢筋与型钢的净间距应大于30mm,纵向受力钢筋的锚固长度、搭接长度应符合现行国家标准《混凝土结构设计规范》GB 50010的要求;
    3 剪力墙的水平分布钢筋应绕过或穿过墙端型钢,且应满足钢筋锚固长度要求;
    4 墙体拉结筋和箍筋的位置、间距和数量应满足设计要求;当设计无具体规定时,应符合相关标准的要求。

8.2.2 当钢筋与墙体内型钢采用钢筋绕开法时,宜按不小于1:6角度折弯绕过型钢。当无法绕过时,应满足锚固长度及相关设计要求,钢筋可伸至型钢后弯锚。

8.2.3 钢筋与墙体内型钢采用穿孔法时,应符合下列规定:
    1 预留钢筋孔的大小、位置应满足设计要求,必要时应采取相应的加强措施;
    2 钢筋孔的直径宜为d+4mm(d为钢筋公称直径);
    3 型钢翼缘上设置钢筋孔时,应采取补强措施。型钢腹板上预留钢筋孔时,其腹板截面损失率宜小于腹板面积25%,且应满足设计要求;
    4 预留钢筋孔应在深化设计阶段完成,并应由构件加工厂进行机械制孔,严禁用火焰切割制孔。

8.2.4 钢筋与墙体内型钢采用钢筋连接套筒连接时,应按本规范第6.2.6条的规定执行。

8.2.5 钢筋与墙体内型钢采用连接板焊接时,应按本规范第6.2.7条的规定执行。

8.2.6 钢-混凝土组合剪力墙中型钢或钢板上设置的混凝土灌浆孔、流淌孔、排气孔和排水孔(图8.2.6)等应符合下列规定:
    1 孔的尺寸和位置应在施工深化设计阶段完成,并应征得设计单位同意,必要时应采取相应的加强措施;
    2 对型钢混凝土剪力墙和带钢斜撑混凝土剪力墙,内置型钢的水平隔板上应开设混凝土灌浆孔和排气孔;
    3 对单层钢板混凝土剪力墙,当两侧混凝土不同步浇筑时,可在内置钢板上开设流淌孔,必要时应在开孔部位采取加强措施;
    4 对双层钢板混凝土剪力墙,双层钢板之间的水平隔板应开设灌浆孔,并宜在双层钢板的侧面适当位置开设排气孔和排水孔;
    5 灌浆孔的孔径不宜小于150mm,流淌孔的孔径不宜小于200mm,排气孔及排水孔的孔径不宜小于10mm;
    6 钢板制孔时,应由制作厂进行机械制孔,严禁用火焰切割制孔。

8.2.7 安装完成的箱形型钢柱和双钢板墙顶部应采取相应措施进行覆盖封闭。

8.2.8 钢-混凝土组合剪力墙的墙体混凝土宜采用骨料较小、流动性较好的高性能混凝土,且应分层浇筑。

8.2.9 墙体混凝土浇筑完毕后,可采取浇水或涂刷养护剂的方式进行养护。

Ⅰ 型钢混凝土剪力墙

8.2.10 墙体混凝土浇筑前,内部的型钢柱应形成稳定的框架,必要时应增加临时钢梁,混凝土浇筑过程中型钢不得偏位。

8.2.11 型钢混凝土剪力墙端部或中部型钢柱和周边型钢梁,应按本规范中第6章型钢混凝土柱和第7章型钢混凝土梁中的相关规定执行。

Ⅱ 钢斜撑混凝土剪力墙

8.2.12 钢斜撑混凝土剪力墙,斜撑与墙内暗柱、暗梁相交位置的节点宜按下列方式处理:
    1 当墙体钢筋遇到斜撑型钢无法贯通时,可采用钢筋绕开法;
    2 当钢筋无法绕开时,可采用连接件法连接;
    3 箍筋可通过腹板开孔穿过或采用带状连接板焊接。

8.2.13 墙体的拉结钢筋和模板使用的穿墙螺杆位置应根据墙内钢斜撑的位置进行调整,宜避开斜撑型钢。当无法避开时,可采用在斜撑型钢上焊接连接套筒的方式连接。

8.2.14 斜撑与墙内暗柱、暗梁相交位置应在横向加劲板上留设混凝土灌浆孔和排气孔,灌浆孔孔径不宜小于150mm,排气孔孔径不宜小于20mm(图8.2.14)。

Ⅲ 钢板混凝土剪力墙

8.2.15 内置钢板的安装与混凝土工程的交叉施工,应符合下列规定:
    1 内置钢板的安装高度应满足稳定性要求;
    2 墙体钢筋绑扎后,钢筋顶标高应低于内置钢板拼接处的横焊缝。

8.2.16 内置钢板安装,宜采取下列措施:
    1 吊装薄钢板时,可在薄钢板侧面适当布置临时加劲措施;
    2 当内置钢板双面坡口的深度不对称时,宜先焊深坡口侧,然后焊满浅坡口侧,最后完成深坡口侧焊缝;
    3 内置钢板的施焊宜双面对称焊接,当条件不允许时,可采取非对称分段交叉焊接的施焊次序;焊缝较长时,宜采用分段退焊法或多人对称焊接法。

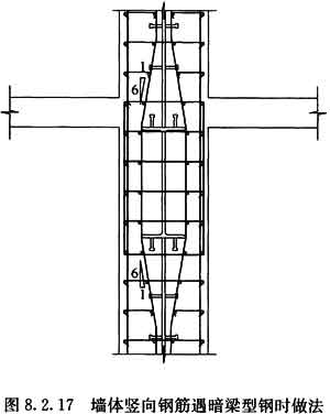
8.2.17 当墙体竖向受力钢筋遇到暗梁型钢无法正常通长时,可按1:6的角度绕开钢梁位置(图8.2.17)。


8.2.18 当墙体竖向受力钢筋遇到型钢混凝土梁无法绕开时,可采用钢筋连接套筒的连接方式连接(图8.2.18),并应符合本规范第6.2.6、6.2.7条的规定。

8.2.19 型钢混凝土梁与钢板混凝土剪力墙相交部位,梁的纵向钢筋可直接顶到钢板然后弯锚;当梁的纵向钢筋锚固长度不足时,可采用连接件连接;连接件的对应位置应设置加劲肋(图8.2.19)。


8.2.20 墙内暗柱或端柱内的箍筋宜穿过钢板,应在钢板上预留孔洞;当柱内箍筋较密时,可采用间隔穿过。

8.2.21 用于墙体模板的穿墙螺杆可开孔穿越钢板或焊接钢筋连接套筒(图8.2.21)。开孔和钢筋连接套筒的尺寸、位置应在深化设计阶段确定。

8.2.22 钢板混凝土剪力墙的墙体混凝土浇筑宜采用下列方式:
    1 单层钢板混凝土剪力墙,钢板两侧的混凝土宜同步浇筑。也可在内置钢板表面焊接连接套筒,并设置单侧螺杆,利用钢板作为模板分侧浇筑(图8.2.22-1)。
    2 双层钢板混凝土剪力墙,双钢板内部的混凝土可先行浇筑,双钢板外部的混凝土可分侧浇筑,浇筑方法可按单钢板混凝土剪力墙分侧浇筑的方法(图8.2.22-2)。
    3 当钢板内部及两侧混凝土无法同步浇筑时,浇筑前应进行混凝土侧压力对钢板墙的变形计算和分析,并应经设计单位的同意,必要时应采取相应的加强措施。

8.2.23 钢板混凝土剪力墙内置钢板安装成型后,其平面外初始变形的幅值D应满足下式的规定:

       

    式中:D——内置钢板面外初始变形幅值,mm;
    L——内置钢板两侧柱净距,mm;
    h——内置钢板上下端钢梁净距,mm。