3.9 公共厕所、无障碍厕所

3.9 公共厕所、无障碍厕所

3.9.1 此处的公共厕所指不设单独的无性别厕所,而是在男、女厕所内分设无障碍厕位的供公众使用的厕所。


3.9.2 无障碍厕位为厕所内的无障碍设施,本条规定了无障碍厕位的做法。
      第1款 在公共厕所内,选择通行方便的适当位置,设置1个轮椅可进入使用的坐便器的专用厕位。专用厕位分大型和小型两种规格。在厕位门向外开时,大型厕位尺寸宜做到2.00m×1.50m,这样轮椅进入后可以调整角度和回转,轮椅可在坐便器侧面靠近后平移就位。小型厕位尺寸不应小于1.80m×1.00m,轮椅进入后不能调整角度和回转,只能从正面对着坐便器进行身体转移,最后倒退出厕位。因此,如果有条件时,宜选择2.00m×1.50m的大型厕位。
      第2款 无障碍厕位的门宜向外开启,轮椅需要通行的区域通行净宽均不应小于800mm,当门向外开启时,门扇里侧应设高900mm的关门拉手,待轮椅进入后便于将门关上。
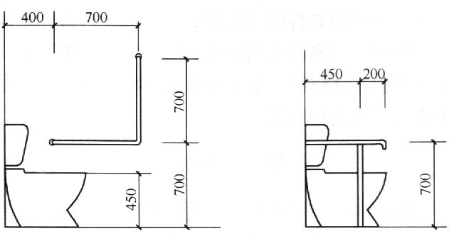
      第3款 在坐便器的两侧安装安全抓杆(图3—5),供乘轮椅者从轮椅上转移到坐便器上以及拄拐杖者在起立时使用。安装在墙壁上的水平抓杆长度为700mm,安装在另一侧的水平抓杆一般为T形,这种T形水平抓杆的长度550mm~600mm,可做成固定式,也可做成悬臂式可转动的抓杆,转动的抓杆可做水平旋转90度和垂直旋转90度两种,在使用前将抓杆转到贴近墙面上,不占空间,待轮椅靠近坐便器后再将抓杆转过来,协助乘轮椅者从轮椅上转换到坐便器上。这种可旋转的水平抓杆的长度可做到600mm~700mm。


3.9.3 此处的无障碍厕所是无性别区分、男女均可使用的小型厕所。可以在家属的陪同下进入,它的方便性受到了各种人群的欢迎。尽量设在公共建筑中通行方便的地段,也可靠近公共厕所,并用醒目的无障碍标志给予区分。这种厕所的面积要大于无障碍专用厕位。

图3-5 坐式便器及安全抓杆

 

3.9.4 本条规定了厕所里的其他无障碍设施的做法。
      第1款 低位小便器的两侧和上部设置安全抓杆,主要是供使用者将胸部靠住,使重心更为稳定。
      第2款 无障碍洗手盆的安全抓杆可做成落地式和悬挑式两种,但要方便乘轮椅者靠近洗手盆的下部空间。水龙头的开关应方便开启,宜采用自动感应出水开关。
      第3款 安全抓杆设在坐便器、低位小便器、洗手盆的周围,是肢体障碍者保持身体平衡和进行移动不可缺少的安全保护措施。其形式有很多种,一般有水平式、直立式、旋转式及吊环式等。安全抓杆要尽量少占地面空间,使轮椅靠近各种设施,以达到方便的使用效果。安全抓杆要安装牢固,应能承受100kg以上的重量。安装在墙上的安全抓杆内侧距墙面不小于40mm。